OBEXGROUP
  • Home
  • About Us
  • Products
    • Ventilation Grilles
    • Ceiling Diffuser
    • Heat Recovery Unit
    • Control Cover
    • Dampers
    • Filters
    • Air Louvre
    • Floor Convector
    • Air Diffusers
    • Silencer
    • Cabinet Type Aspirator
    • DIFFUSERS
  • Blogs
  • Contact
OBEXGROUP
OBEXGROUP
OBEXGROUP
As Obexgroup, we have been producing not only products but also trust and sustainable success since the first day we started.
© 2025 Obexgroup. All rights reserved. Design and Development: JBM INTERACTIVE

Categories

  • Ventilation Grilles
  • Ceiling Diffuser
  • Air Diffusers
  • Air Louvre
  • Control Cover
  • Dampers
  • Filters
  • Silencer
  • Floor Convector
  • Cabinet Type Aspirator
  • Heat Recovery Unit

Fire Damper

DESCRIPTION
• Rectangular Fire Damper
•Circular Fire Damper

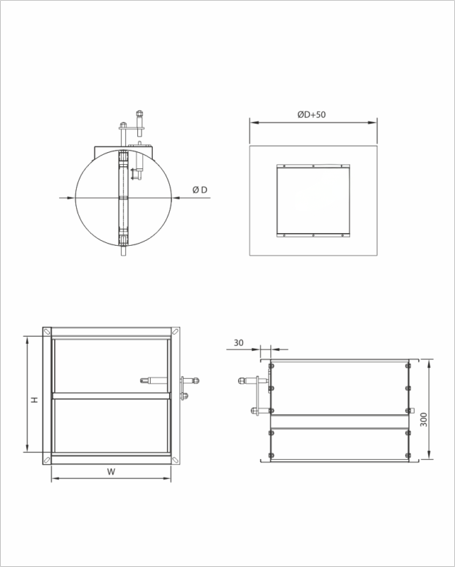
Rectangular Fire Damper and Circular Fire Damper Series Prismatic and circular Fire Dampers are used in air ducts in order to prevent spreading of the fire to other localities. Fire dampers consists of three main components. These parts are in turn casing and blade manufactured from galvanized sheet metal having TS EN 10346 certification and a protection fuse that becomes activated at 72C. The bearing bushing in the fire damper that acts as a jack valve is made from brass and the shaft that turns in the bearing is made from galvanized steel. This ensures longevity of the system and deformation of the material. In order to ensure a good seal in the casing joints high heat resistant red silicone is used. In addition to the fuse a servo-motor can also be incorporated to allow intervention. The servo-motor used is a 24V 240V motor. As an option the servo-motors can be equipped with thermal components. Servo-motor equipped fire dampers can be connected to the automation system for better control.
Resim 1

About

As Obexgroup, we have been producing not only products but also trust and sustainable success since the first day we started.

Contact Us

  • [email protected]
  • +90 535 050 90 94
  • SOĞANLIK YENİ MAH. NEVZAT OKÇUGİL SK. A-BLOK NO: 1 İÇ KAPI NO: 48 KARTAL İSTANBUL

Quic Links

  • Home
  • About Us
  • Products
  • Contact

Newsletter Forms

OBEXGROUP
© 2025 Obexgroup. All rights reserved. Design and Development: JBM INTERACTIVE